1、写真のような金型の配置を最初から考えます。前提として2400x96x1.2tの切り板の材料に作業者が手作業でプレス加工します。
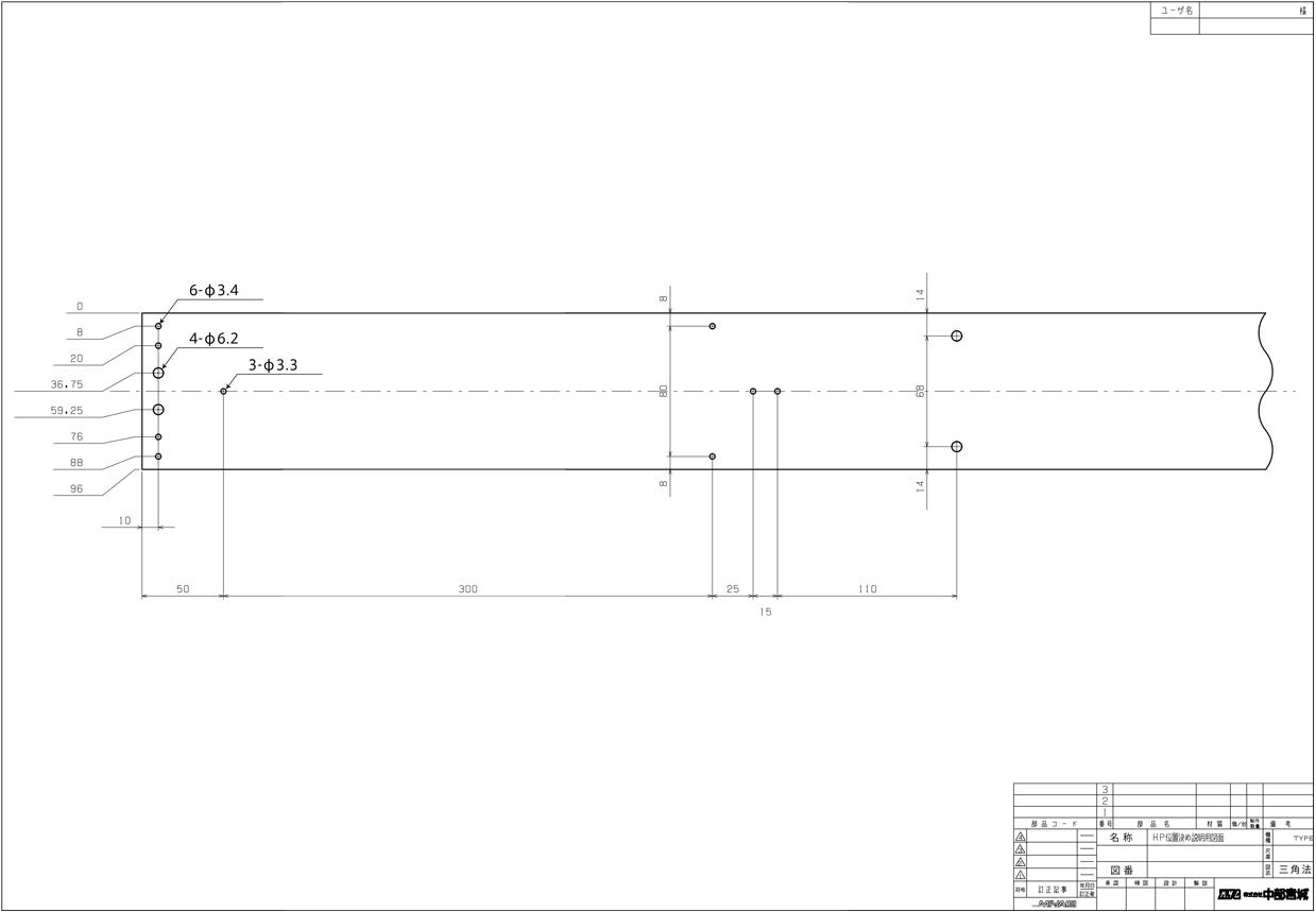
2、元になる製品図。6-φ3.4、4-φ6.2、3-φ3.3の3種類の穴あけを行いたい。全長2400で反対側は同じなので、左だけ考えます。
3、パンチセットの配置を考えるときに、まず考えるのは「物理的に並べられるか?」ということです。図の赤丸A・Bの部分に注目すると、Aの部分で隣の穴と12ミリ、Bの部分で15ミリの接近した穴があります。
4、弊社のパンチセットで、一番幅の狭いものがSM-0のW=20ミリです。穴ピッチ20ミリが限界のため、A・Bとも別に考える必要があります。
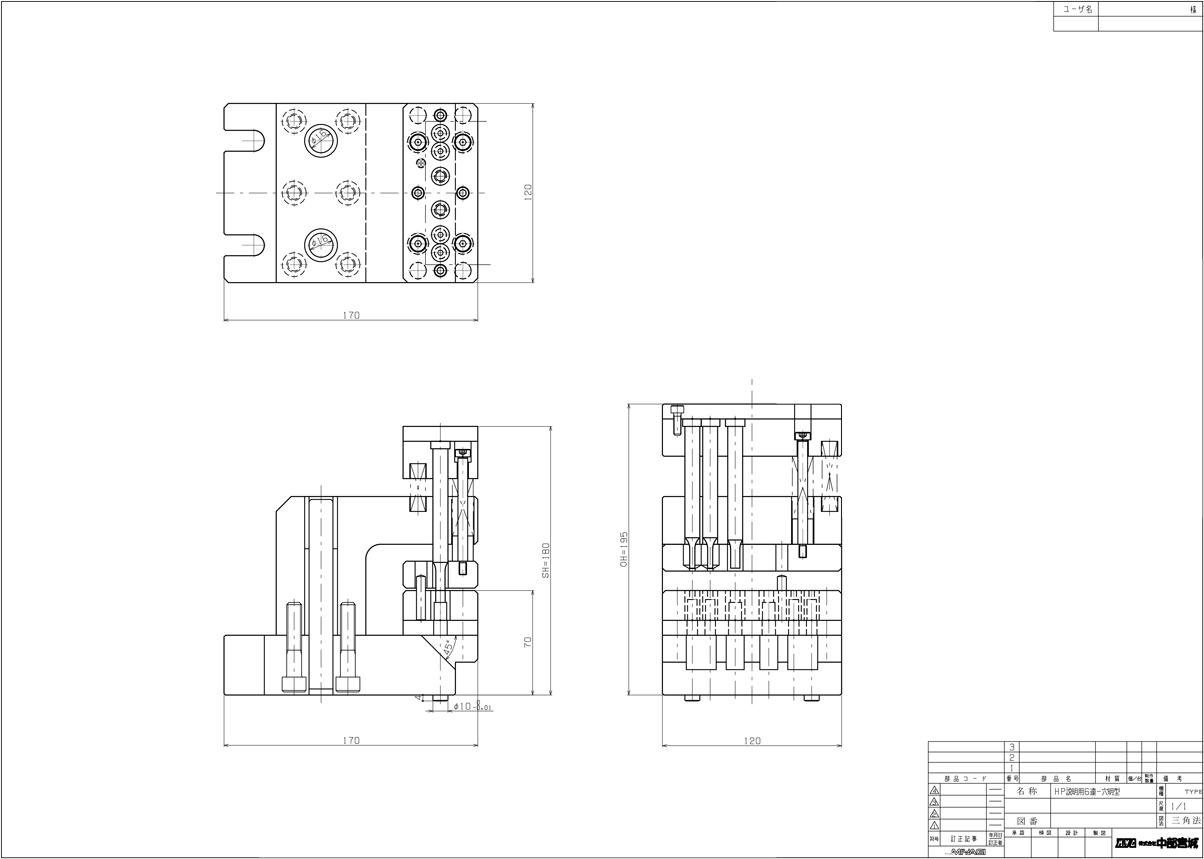
5、Aの方は、特型の6連型を設計することにします。(特型の製作見積依頼承ります)
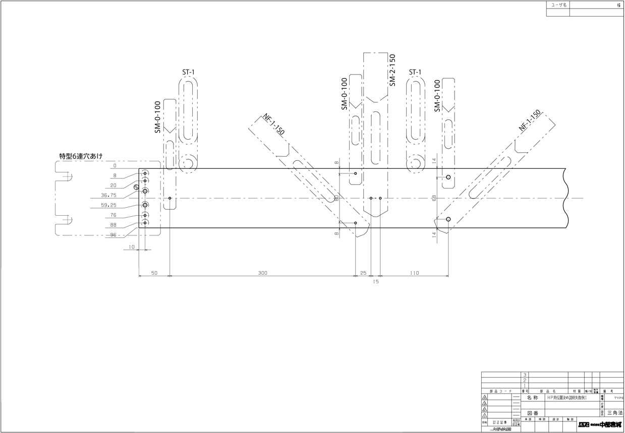
6、Bの方は、本体は普通ですが、パンチダイを特殊な2連型にすることにします。それでは、製品を加工できるようにパンチセットを配置してみます。
7、ひとまず配置してみました。アテがまだないので、アテから考えます。
8、図の黄緑色の丸のところにアテを配置しようと思います。左側は6連型のために外側にアテを配置できないので、金型の中に作ります。奥側は2か所ST-1を設置することにします。
9、6連型の中にアテをつけ、奥に2台ST-1を配置しました。 材料の投入方向がこのままでは支障があるので、再考します。 作業者は黄色の丸に立って手作業で加工します。 材料は赤い矢印の方向へ材料を投入したいところですが 手前にSMー0-100①・②があるため、 右手側から青い矢印の方向しか材料を投入できません。 これでは大変作業性が悪いです。 (コイル材で流すとかであれば、問題はありません) 手前から材料を入れられるように改良します。 (C型フレームを回転させて、口の開いている方を手前に向けます
10、完成しました。 この配置であれば、手前から材料を投入しやすいです。 SM-0-100を向こう側へ回してもギリギリ届きそうですが 少し余裕を持たせるためNFー1-150に変更しています。
11、仮置き用のDXFをダウンロードできます。ご活用ください。